Manutention du bois
Cascade – Convoyeurs à biomasse
Emplacement
Cabano, QC
Année de réalisation
2017
Type de projet
Capex
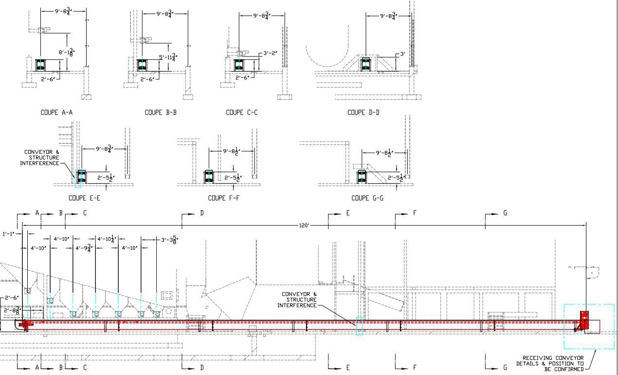
Dans son usine de Cabano en Abitibi, Cascade fabrique du carton ondulé à partir de fibres vierges et recyclées. En 2017, l’usine à démarré une nouvelle bouilloire à copeaux.
Conversion d'énergie à partir de la biomasse
Trinum a conçu un convoyeur d’alimentation de la bouilloire avec des copeaux et un convoyeur à cendre sèches.
Autres projets